HAFELESALE - Mua Sắm Dễ Dàng

PHỤ KIỆN GIƯỜNG XẾP HAFELE BETLIFT, MỞ ĐỨNG 271.97.323

SKU: 271.97.323
Thương hiệu: Hafele
4.338.000₫ Giá thị trường: 5.784.900₫ Tiết kiệm: 1.446.900₫
Tình trạng: Còn hàng
Gọi điện để được tư vấn: 093.108.9339
Hình thức thanh toán HAFELESALE.COM.VN HAFELESALE.COM.VN HAFELESALE.COM.VN

PHỤ KIỆN GIƯỜNG XẾP HAFELE BETLIFT, MỞ ĐỨNG 271.97.323

Phụ kiện giường xếp Hafele 271.97.323 được sản xuất trên dây chuyền công nghệ hiện đại, tiên tiến nhất của Đức. Nguyên vật liệu cao cấp, chính hãng, cho thời gian sử dụng được lâu. Là một trong những phụ kiện được rất nhiều người dùng lựa chọn. Tham khảo thêm một vài thông tin dưới đây.

Chất liệu: phụ kiện: thép

Nắp che ốc: nhựa

Màu sắc: Màu đen

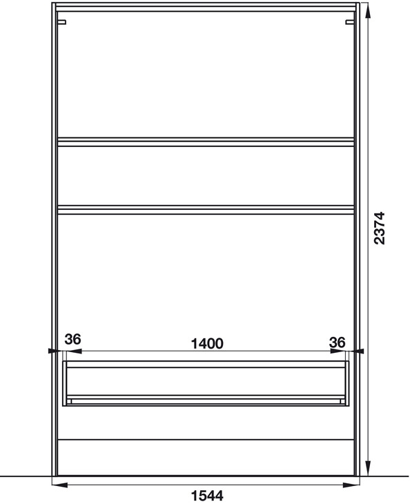
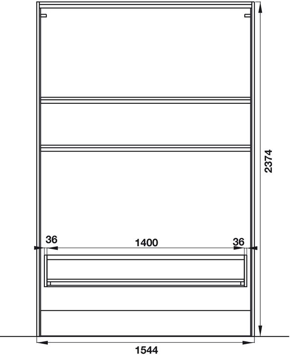
Khoảng cách A: 455 mm

Kích thước: 1400 x 2000 mm

Phiên bản: Với khung giường và phần đầu có thể điều chỉnh.

Tham khảo bản vẽ kỹ thuật dưới đây:

 

SHOWROOM HAFELE - BLUM - SMEG - BOSCH - BLANCO - KESSEBOHMER - CUCINA

Zalo HAFELESALE.COM.VN 093.108.9339
popup

Số lượng:

Tổng tiền:

Đã xem